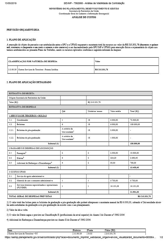
Página Inicial ANÁLISE DE CUSTOS